Beschrijving
Ben jij op zoek naar een ruim en licht hoekappartement op een centrale locatie in Tilburg?
Dit keurige 4-kamer appartement in de wijk Het Zand heeft alles in huis.
Met een royale woonkamer, drie slaapkamers, een balkon op het westen en een eigen berging is dit de perfecte plek om comfortabel te wonen.
De hoekligging op de tweede verdieping maakt dit appartement extra aantrekkelijk.
Extra ramen zorgen voor veel lichtinval en bovendien is de woning groter dan de meeste andere appartementen in het complex.
De woonkamer is een fijne leefruimte met toegang tot het zonnige balkon.
De keuken grenst aan de doucheruimte en daarnaast zijn er drie slaapkamers en een separate toiletruimte.
Ideaal voor wie op zoek is naar een praktische indeling én veel mogelijkheden.
De ligging is super gunstig met het winkelcentrum Westermarkt of NS station Tilburg Universiteit op loopafstand.
Ook het levendige Spoorzonegebied, het groene Wandelbos, bushaltes en uitvalswegen liggen op korte afstand.
Alles wat je nodig hebt is dichtbij.
Uitvalswegen zijn in enkele minuten te bereiken en er is meer dan voldoende parkeergelegenheid rondom het complex.
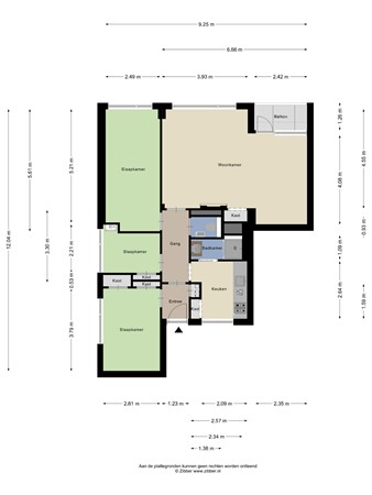
INDELING
In de gemeenschappelijke hal van het complex bevindt zich een beltableau met intercomsysteem, de brievenbussen, het trappenhuis en de toegangsdeur tot de lift.
De algemene fietsenberging, containerruimte en individuele bergingen zijn via een afgesloten toegangsdeur bereikbaar.
Het appartement is gelegen op de tweede verdieping en ligt aan het einde van de galerij waardoor je extra rust en privacy hebt.
Aan de voorzijde is er ruimte voor een gezellig zitje waar je ongestoord kunt genieten van de ochtendzon.
Aangekomen in het appartement vindt je een ruime hal met toegang tot de vertrekken.
Tevens is in de hal de meterkast en een aparte toiletruimte met hangend toilet en fonteintje gevestigd.
WOONKAMER
In de hal en woonkamer ligt een nette laminaatvloer.
De woonkamer is ruim en straalt een fijne sfeer uit.
In de woonkamer is een vaste kast en een elektrische haard aanwezig.
De grote ramen zorgen voor veel lichtinval in de woonruimte.
Aan de achterzijde van de woonkamer is er toegang tot het op het westen gelegen balkon.
SLAAPKAMERS
Het appartement beschikt over drie slaapkamers.
De drie kamers zijn gelegen op de hoek van het complex waardoor er veel lichtinval is.
Alle drie de slaapkamers zijn voorzien van kunststof kozijnen en dubbele beglazing.
De slaapkamer gelegen aan de voorzijde van het appartement beschikt over twee vaste kasten en een bruine laminaatvloer.
De middelste kamer is kleiner van formaat en is voorzien van één vaste kast en een bruine laminaatvloer.
In de middelste kamer is de cv-ketel aanwezig en hier is tevens de aansluiting voor de wasmachine.
De achterste en tevens grootste slaapkamer is voorzien een grijze laminaatvloer.
KEUKEN
De keuken ligt aan de voorzijde van het appartement en is voorzien van een tegelvloer.
Via het grote raam valt er veel licht naar binnen.
Vanuit de keuken kijk je uit over de galerij en de parkeerplaats.
De keukenopstelling is uitgerust met diverse inbouwapparatuur zoals een 4-pits gasfornuis, koelkast en een vaatwasser.
Daarnaast is er veel opbergruimte dankzij de kastjes en een vaste inbouwkast.
BADKAMER
De betegelde doucheruimte is te bereiken via de keuken.
Deze ruimte is voorzien van een douche en een wastafel met spiegelkast.
Bovendien is er een radiator en mechanische ventilatie aanwezig.
BALKON
Het op het westen gelegen balkon is een prima plek om te genieten van het groene uitzicht.
De woonomgeving kenmerkt zich door de ruime opzet en de groene inrichting.
Op het balkon geniet je in alle rust van de omgeving.
BERGING
De eigen berging is gelegen op de begane grond en is van een groot formaat.
Hierdoor biedt het voldoende ruimte voor het opbergen van fietsen, gereedschap, seizoensgebonden spullen of andere bezittingen.
OMGEVING
Het appartement is gelegen aan een parkje en op loopafstand vind je treinstation Tilburg Universiteit en het Wandelbos.
Voor dagelijkse boodschappen loop je naar de Westermarkt met onder meer de Albert Heijn en op donderdag de weekmarkt.
Met acht minuten fietsen zit je midden hartje centrum.
Parkeren is eenvoudig dankzij de vele gratis parkeerplaatsen bij het complex.
Bijzonderheden
* 4-kamer hoekappartement met balkon op het westen
* Centrale groene ligging nabij Tilburg Universiteit en Tilburg centrum
* Geheel voorzien van dubbele beglazing (m.u.v. de voordeur)
* Eigen berging met elektra
* Gratis en veel parkeergelegenheid
* Snelle aanvaarding mogelijk
* Maandelijkse bijdrage VvE € 152,93