Beschrijving
Instapklare tussenwoning met een unieke ligging en een adembenemend uitzicht.
Welkom bij deze sfeervolle woning aan de rand van Dongewijk in de Reeshof.
Hier word je omringd door groen en geniet je elke dag van het open uitzicht.
Je kijkt vanuit de woonkamer uit over de Dongevallei, een prachtig natuurgebied waar onder andere Schotse hooglanders rondlopen.
De woning heeft een ruime woonkamer met open keuken in hoekopstelling, airconditioning en vloerverwarming op de begane grond. In 2024 heeft de badkamer een renovatie ondergaan, waarbij de douche is vernieuwd.
Met vier slaapkamers is er genoeg plek voor het hele gezin.
De zonnige tuin op het zuiden met overkapping maakt het plaatje compleet.
Alles wat je nodig hebt ligt dichtbij zoals sportvoorzieningen, (basis)scholen, winkelcentrum Heyhoef en treinstation Reeshof.
Ook ben je binnen enkele wandelminuten in het Reeshofpark en met de auto ben je in een paar minuten bij de uitvalswegen.
Wil je zelf ervaren hoe fijn het hier wonen is?
De foto’s geven alvast een indruk, maar de echte sfeer voel je pas tijdens een bezichtiging.
Maak gerust een afspraak en ontdek of dit jouw nieuwe thuis wordt.
Indeling
Je loopt langs de Schotse hooglanders en via de groene voortuin naar de voordeur.
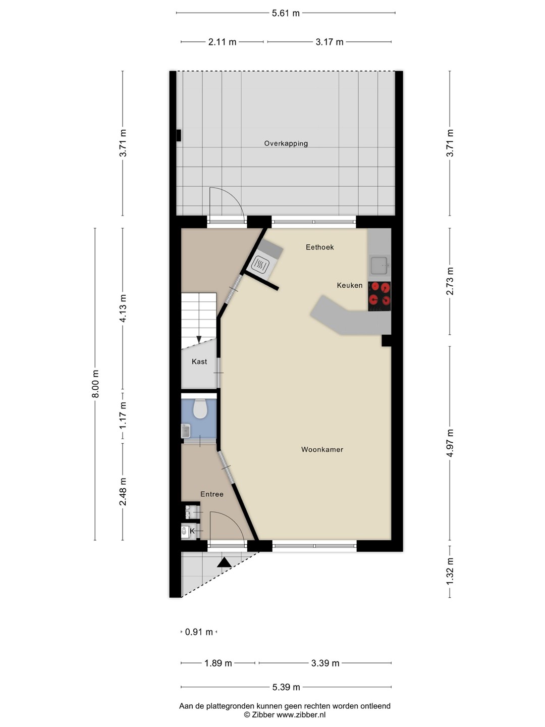
Daar stap je de hal binnen. In de hal vind je de meterkast, garderobe en een toiletruimte met hangend toilet en fonteintje.
De begane grond heeft een vernieuwde laminaatvloer met vloerverwarming.
Vanuit de hal kom je in de woonkamer. Deze ruimte is licht en uitnodigend.
Aan de voorzijde van de woonkamer bevindt zich het zitgedeelte.
De grote ramen geven een prachtig uitzicht over de Dongevallei.
In de woonkamer is een handige trapkast voor extra bergruimte.
Aan de achterzijde van de woning ligt de open keuken. Je kijkt vanuit het grote raampartij uit over de achtertuin.
De keuken is uitgerust met alle benodigde inbouwapparatuur, zoals een vaatwasser (2020), een 4-pits inductiekookplaat met afzuiging, een koelkast met vriesvak en een combi-oven.
Dankzij de vele kastjes en de praktische apothekerskast is er volop opbergruimte.
Je loopt vanuit de keuken naar de hal gelegen aan de achterzijde van de woning.
Hier vind je de trapopgang naar de eerste verdieping en de deur die toegang geeft tot de tuin.
Eerste verdieping
De eerste verdieping is praktisch ingedeeld en voelt ruim aan.
Vanaf de overloop bereik je de badkamer en drie slaapkamers.
Aan de voorzijde van de woning liggen twee kamers die perfect zijn als kinderkamer, werkkamer of logeerkamer.
De ouderslaapkamer is gelegen aan de achterzijde.
De badkamer is ruim opgezet en is uitgerust met een vernieuwde royale douche, een wastafelmeubel en een hangend toilet.
Een fijne plek om rustig je dag te beginnen.
Tweede verdieping
Via de vaste trap bereik je de tweede verdieping.
Op de tweede verdieping bevindt zich een ruime vierde slaapkamer.
De kamer is licht en biedt genoeg plek voor een groot bed of een werkhoek.
Achter de opbergschotten vind je een groot oppervlakte aan bergruimte.
Daarnaast bevindt zich op de zolder de aansluiting voor de wasmachine en ruimte voor een droger.
Tuin
De tuin ligt op het zuiden en is grotendeels betegeld met groene borders aan de zijkanten.
Er is een ruime overkapping met inbouwspots aanwezig.
Achterin de tuin is een berging met een overkapping. Het dak is voorzien van een vegetatiedak (groen dak).
In de berging is er genoeg ruimte voor het opbergen van tuinspullen en er is tevens elektra aanwezig.
De tuin is ook gemakkelijk te bereiken via een poort.
Bijzonderheden
* Gelegen op een unieke locatie aan natuurgebied de Dongevallei
* In een rustige, kindvriendelijke wijk met alle voorzieningen in de buurt
* 4 slaapkamers
* Energielabel A
* Vernieuwde laminaatvloer begane grond (2022)
* Vernieuwde douche uit 2024
* Airconditioning en vloerverwarming op de begane grond
* Tuin op het zuiden met overkapping en berging met elektra