Beschrijving
        
            Montfortanenlaan 62 is een sfeervolle tussenwoning gelegen op een rustige locatie in Tilburg West. De woning is keurig onderhouden, grotendeels voorzien van kunststofkozijnen met dubbel glas en op de begane grond achterzijde houten kozijnen met dubbelglas. Het huis heeft een fijne lichte woonkamer, keuken, kelder, maar liefst vier slaapkamers en een moderne nieuwe badkamer. En niet te vergeten de heerlijke diepe tuin gelegen op het zuiden. 
De woning is gelegen in de wijk Het Zand. Wat deze wijk bijzonder aantrekkelijk maakt is de ligging. Je kunt vanuit de woning lopend naar het Wandelbos en De Oude Warande. Tevens is de woning ideaal gelegen t.o.v. de Universiteit en station Tilburg Universiteit. Ook zijn de uitvalswegen goed bereikbaar richting ’s-Hertogenbosch, Breda en Eindhoven. Kortom een ideale plek voor zowel gezinnen als starters of doorstromers!
Bel met Adequaat Makelaardij voor een bezichtiging. Wij nemen graag de tijd voor je.
        
     
    
            Indeling
        
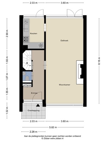
            Je parkeert je auto in een van de parkeerhavens voor de woning. Aangekomen bij de woning heb je vanuit de hal toegang tot de garderobe, meterkast, toiletruimte met fonteintje, de kelder en de woonkamer. 
In de woonkamer valt meteen de heerlijke hoeveelheid lichtinval op en de warme sfeer. Aan de voorzijde vind je het zitgedeelte met een karakteristieke schouw en open haard terwijl de eethoek aan de achterzijde uitkijkt op de tuin. De gehele benedenverdieping is afgewerkt met een fraaie PVC visgraatvloer.
De dichte keuken is praktisch van opzet en voorzien van diverse inbouwapparatuur zoals een gasfornuis, afzuigkap, koelkast, vriezer (met drie lades), vaatwasser en voldoende opbergruimte.
De woning beschikt ook over een ruime kelder waar zich de wasopstelling bevindt en de cv-installatie is geplaatst. De kelder is ideaal voor extra bergruimte!
        
     
    
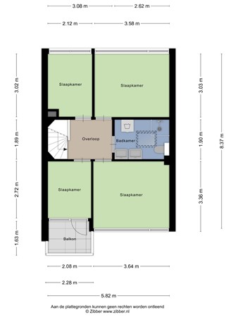
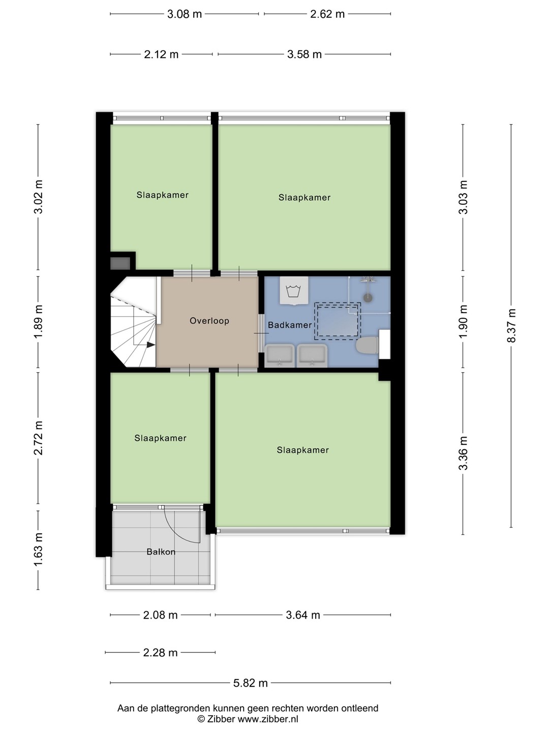
            Eerste verdieping
        
            Aangekomen op de bovenverdieping heb je vanuit de overloop toegang tot maar liefst vier slaapkamers en een badkamer. Twee slaapkamers aan de voorzijde en twee slaapkamers aan de achterzijde. De overloop en de slaapkamers zijn voorzien van een laminaatvloer.
De badkamer is in 2022 vernieuwd en straalt luxe en comfort uit. Voorzien van een inloopdouche met stort- en handdouche, een dubbele wastafel in meubel, sfeervolle inbouwspots en natuurlijk daglicht via de lichtkoepel. Een heerlijk begin van de dag!
        
     
    
            Tuin
        
            De achtertuin is een echt pluspunt van deze woning. De tuin is diep en gelegen op het zonnige zuiden. Hier geniet je de hele dag van de zon, of je nu wilt tuinieren, spelen of ontspannen met een goed boek. Achter in de tuin bevindt zich een berging, houthok voor de open haard en een achterom.
        
     
    
            Bijzonderheden
        
            * Ruime tussenwoning met vier slaapkamers
* Moderne badkamer (2022)
* Nieuw dak inclusief isolatie (2021)
* Grotendeels kunststof kozijnen met dubbel glas
* Ruime kelder
* Zonnige tuin op het zuiden