Beschrijving
Deze charmante jaren ’30 erkerwoning is de ideale plek voor stellen en gezinnen die op zoek zijn naar ruimte en karakter, midden in een centrale en levendige omgeving.
De woning met zonnige tuin en vier slaapkamers is gelegen in de wijk Loven-Besterd.
Op 10 minuten wandelen van onder ander het centrum van Tilburg, Spoorzone en het centraal treinstation.
De woning beschikt over een heerlijke stadstuin op het zuidwesten en een complete badkamer met onder andere een ligbad en een douche.
Authentieke elementen zoals een sfeervolle erker, paneeldeuren en glas-in-looddetails geven het huis een warme en unieke uitstraling.
De royale keuken is licht en praktisch ingericht en voorzien van alle benodigde inbouwapparatuur.
De gezellige koffiehoek maakt het geheel compleet.
De ruime woonkamer met erker en houtkachel zorgt voor een sfeervolle leefruimte.
Zowel de levendige Heuvelstraat, gezellige terrasjes als verschillende bushaltes zijn gelegen op loopafstand.
Voor de dagelijkse boodschappen kun je terecht bij de supermarkt om de hoek of op winkellint Besterd met onder andere een bakker, schoenenzaak en diverse delicatessenwinkels.
De Ringbaan-Oost biedt een uitstekende verbinding met de uitvalswegen richting omliggende dorpen en steden.
Kortom een fijne en complete woning op een toplocatie die je echt zelf moet ervaren.
Plan gerust een bezichtiging en kom zelf de sfeer proeven en laat je verrassen.
Indeling
Aan de voorgevel vallen direct de stijlvolle erker en de glas-in-looddetails op.
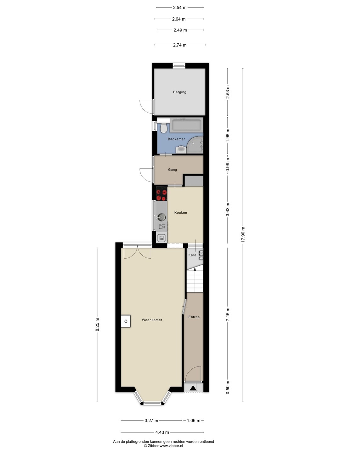
Je komt binnen in de hal met garderobe en de trap naar de eerste verdieping.
Vanuit de hal loop je door naar de lichte en sfeervolle woonkamer.
Het grote raampartij aan de voorzijde zorgt voor veel lichtinval.
Centraal in de ruimte staat een knusse houtkachel die zorgt voor extra warmte en gezelligheid.
Daarnaast zijn er ook radiatoren en een designradiator aanwezig in het woongedeelte.
De begane grond is afgewerkt met een laminaatvloer.
Via de openslaande tuindeuren betrek je het buitenleven eenvoudig bij de woning.
De keuken ligt aan een groot raam waardoor er veel daglicht op het werkblad valt.
De keuken is praktisch ingedeeld en voorzien van diverse inbouwapparatuur zoals een 4-pits inductiekookplaat, afzuigkap, vaatwasser, koelkast en combimagnetron.
Daarnaast is er een ruim werkblad en voldoende kastruimte aanwezig.
Vanuit de keuken bereik je de grote verdiepte trapkast met meterkast.
Deze ruimte is uitermate geschikt als voorraadkast.
Het gezellige koffiehoekje maakt de keuken helemaal compleet.
Achter in de woning bevinden zich de bijkeuken en de badkamer.
In de bijkeuken is de cv-ketel gesitueerd en hier vind je de aansluiting voor de wasmachine.
Vanuit de bijkeuken is er ook toegang tot de achtertuin.
De ruime badkamer is bereikbaar via de bijkeuken en is compleet uitgevoerd met een douche, ligbad met jetstream, wastafelmeubel, hangend toilet en een designradiator.
De bijkeuken en badkamer zijn voorzien van een nette tegelvloer wat zorgt voor een praktische en verzorgde aanvulling op de woning.
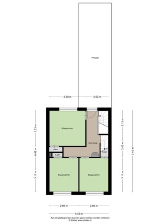
Eerste verdieping
De overloop met originele paneeldeuren geeft toegang tot drie ruime slaapkamers.
Alle drie de slaapkamers zijn voorzien van een vaste inbouwkast.
Twee slaapkamers liggen aan de voorzijde van de woning en één slaapkamer aan de achterzijde van de woning.
De verdieping is keurig afgewerkt met een laminaatvloer.
Op de overloop vind je bovendien een wastafel.
Tweede verdieping
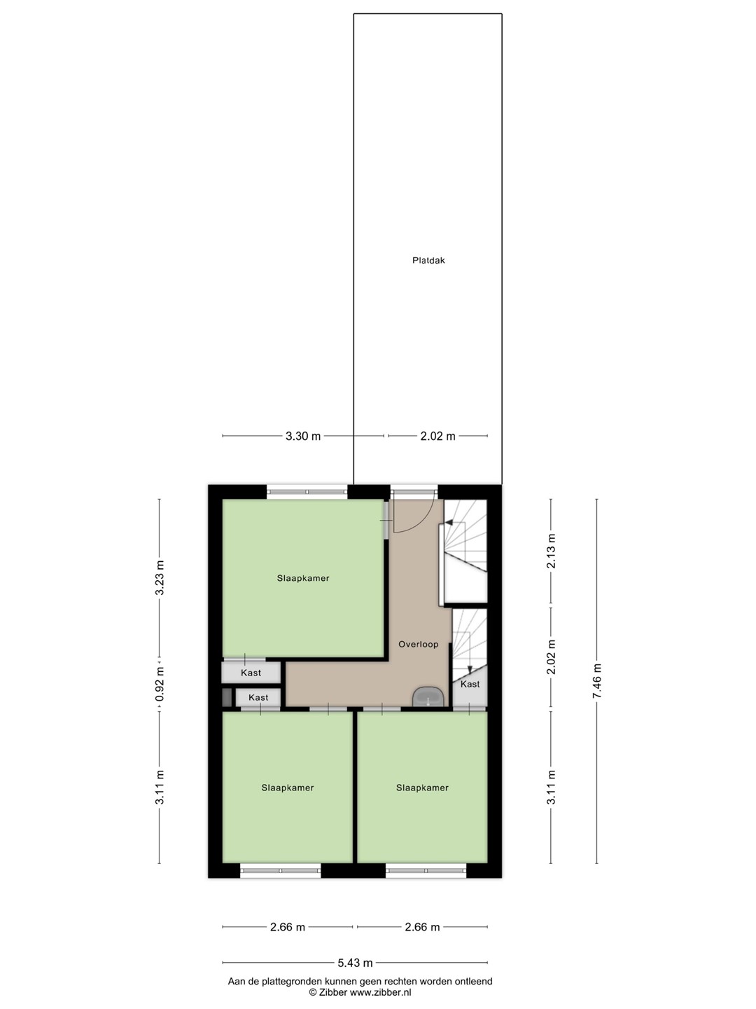
Middels een vaste trap bereik je de tweede verdieping.
Vanuit de voorzolder kom je via een aparte deur in de slaapkamer.
Hier is aan beide zijden handige opbergruimte achter de knieschotten aanwezig.
De ruime zolder met twee Velux dakramen is een veelzijdige extra ruimte en ideaal als vierde slaapkamer, logeerkamer of rustige thuiswerkplek.
Tuin
De gezellige stadstuin ligt op het zuidwesten en biedt volop mogelijkheden om te ontspannen in de buitenlucht.
Op warme zomerdagen zet je de openslaande tuindeuren open en geniet je hier van fijne momenten met vrienden en familie.
Achter in de tuin bevindt zich een afdakje voor het opslaan van hout voor de houtkachel.
Daarnaast is er een ruime aangebouwde stenen berging (circa 7 m2) met elektra aanwezig.
Via de poort is het eenvoudig om de fiets in de tuin of berging te stallen.
Bijzonderheden
* Jaren ’30 erkerwoning op 10 wandelminuten van hartje Tilburg en de Spoorzone
* Fijne stadstuin op het zuidwesten met stenen berging en elektra
* Behoud van karakteristieke details zoals originele paneeldeuren en glas-in-lood
* Vier ruime slaapkamers voorzien van vaste kasten
* Royale keuken met inbouwapparatuur en koffiehoekje
* De woning is volledig voorzien van kunststof kozijnen met dubbelglas
* Snelle aanvaarding mogelijk