Beschrijving
Verrassend ruime gezinswoning met twee slaapkamers (met mogelijkheid tot vier slaapkamers) en zonnige tuin gelegen in de buurt “Heikant” in Tilburg-Noord.
Ideale plek voor kinderen met de groenstrook voor de deur en veel parkeergelegenheid.
De woning beschikt over een lichte woonkamer, een moderne halfopen keuken en een onderhoudsvriendelijke tuin op het zuidoosten.
Daarnaast is de woning voorzien van energielabel B en houten kozijnen met dubbele beglazing.
Op de eerste verdieping bevinden zich momenteel twee zeer ruime slaapkamers.
Oorspronkelijk waren dit vier slaapkamers.
Desgewenst is het eenvoudig om weer extra slaapkamers te creëren, waardoor de indeling flexibel kan worden aangepast aan jouw woonwensen.
Ideaal voor gezinnen of voor wie extra ruimte zoekt voor een werk-, kinder- of logeerkamer.
Tevens bestaat er voor de badkamer de optie om deze te verplaatsen naar de voor- of achterzijde van de woning, waardoor een ruimere badkamer met natuurlijk daglicht gerealiseerd kan worden.
Met twee rechterhanden kun je hier op de eerste en tweede verdieping je eigen woonwensen realiseren terwijl de begane grond een goede basis biedt.
Deze woning is daarmee een uitstekende kans voor starters en gezinnen die op zoek zijn naar een fijne thuisbasis met volop potentie.
In de directe omgeving zijn diverse voorzieningen aanwezig.
De wijk kenmerkt zich door veel groen, een rustige sfeer en een prettige woonomgeving.
Op loop- en fietsafstand vind je het winkelcentrum Wagnerplein, scholen, sportverenigingen, speeltuinen en sportcomplex Drieburcht.
Ook de uitvalswegen richting het centrum en de snelweg zijn uitstekend bereikbaar.
Neem zeker de moeite om deze woning tijdens een bezichtiging zelf te komen bekijken en ervaar de ruimte en mogelijkheden die dit huis te bieden heeft.
Indeling
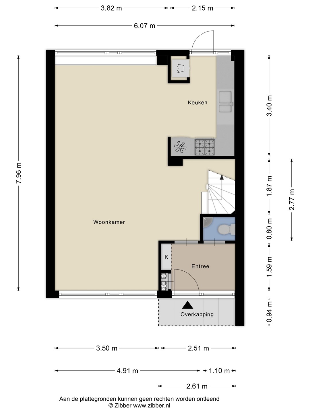
Je betreedt de woning via de hal met meterkast, toiletruimte en garderobe.
De gehele begane grond is afgewerkt met een moderne tegelvloer en strak gestucte wanden.
De woonkamer is aangenaam licht door de grote raampartijen aan zowel de voor- als achterzijde van de woning.
De woonkamer betreft een lichte doorzonwoonkamer met een fijne open indeling.
Aan de voorzijde bevindt zich de zithoek waar de grote ramen zorgen voor een prettig uitzicht op de groenstrook.
Aan de achterzijde is ruimte voor een royale eethoek met uitzicht op de achtertuin.
De zithoek en eethoek staan in open verbinding met elkaar waardoor een ruime en gezellige leefruimte ontstaat waar je comfortabel kunt wonen en tafelen.
De keuken is praktisch ingericht in een hoekopstelling en is voorzien van een vierpits gasfornuis met oven en een koelkast en vriezer.
Er is volop werk- en bergruimte in de keuken aanwezig.
De aansluiting voor de wasmachine is in een onderste kast gelegen.
Vanuit de keuken geeft een deur toegang tot de achtertuin.
Eerste verdieping
Aangekomen op de eerste verdieping geeft de overloop toegang tot twee slaapkamers en de badkamer.
Beide slaapkamers zijn extra ruim opgezet.
Oorspronkelijk waren hier vier slaapkamers, maar door het verwijderen van tussenmuren zijn er twee zeer royale kamers ontstaan.
Aan de voorzijde bevindt zich een slaapkamer van circa 19 m².
De slaapkamer aan de achterzijde is met circa 21 m² zelfs nog ruimer.
Het is eenvoudig om weer een tussenwand te plaatsen waardoor desgewenst opnieuw drie of vier slaapkamers kunnen worden gecreëerd.
Zo is er altijd een kamer die uitstekend geschikt is als kinder-, werk- of logeerkamer.
De badkamer is tevens bereikbaar vanaf de overloop en is voorzien van een douche, wastafel en toilet.
Er bestaat de mogelijkheid om de badkamer te verplaatsen naar de voor- of achterzijde van de woning.
Hierdoor kan een ruimere badkamer met natuurlijk daglicht worden gerealiseerd.
Kortom, deze verdieping biedt volop mogelijkheden.
Tweede verdieping
Via de vaste trap bereik je de ruime zolderverdieping van circa 22 m².
Deze verdieping beschikt over twee dakramen en biedt volop praktische bergruimte onder de schuine kap.
Bij het plaatsen van een groter dakraam of een dakkapel kan deze verdieping worden meegerekend als woonoppervlak.
Hierdoor ontstaat de optie voor een extra slaapkamer op de tweede verdieping.
Tuin
De onderhoudsvriendelijke achtertuin ligt op het zonnige zuidoosten en is volledig omsloten.
Achter in de tuin bevindt zich een ruime stenen berging voorzien van elektra.
Daarnaast is er een achterom aanwezig.
Bijzonderheden
* Energielabel B
* In een kindvriendelijke wijk met winkelcentrum Wagnerplein op loopafstand
* Gelegen aan een brede groenstrook en grote parkeerplaats
* Moderne halfopen keuken
* Verassend grote ruimtes welke gemakkelijk anders in te delen zijn
* Ruime achtertuin gelegen op het zuidoosten met berging en elektra