Beschrijving

Stel je voor, als starter of jong stel: je eigen frisse en instapklare 3-kamerappartement op een rustige én gunstige locatie in de wijk “Het Zand”. 
Met twee fijne balkons en een ruime berging heb je genoeg plek om te genieten en al je spullen netjes kwijt te kunnen. 
Het appartement is gesitueerd op de eerste woonlaag, waardoor je snel en gemakkelijk bij je woning bent. 

Wonen op een centrale locatie in Tilburg wordt nu wel heel aantrekkelijk. 
Op korte afstand van de universiteit, het treinstation en het levendige stadscentrum vind je dit fijne appartement. 
Hier geniet je van de rust van je eigen plek, terwijl alle voorzieningen en gezelligheid binnen handbereik zijn.

Dit instapklare appartement is uitstekend onderhouden en voorzien van een nette laminaatvloer en kunststof kozijnen met HR++ glas. 
Verder biedt het alles wat je nodig hebt: twee slaapkamers, een badkamer met inloopdouche, een separate toiletruimte en twee balkons waarvan één heerlijk zonnig op het zuiden. 
Een ideale woning voor starters of stellen die comfortabel willen wonen in een groene, rustige omgeving.

Is jouw interesse gewekt? Bel dan gerust voor het inplannen van een bezichtiging om dit fijne appartement zelf te komen ervaren.

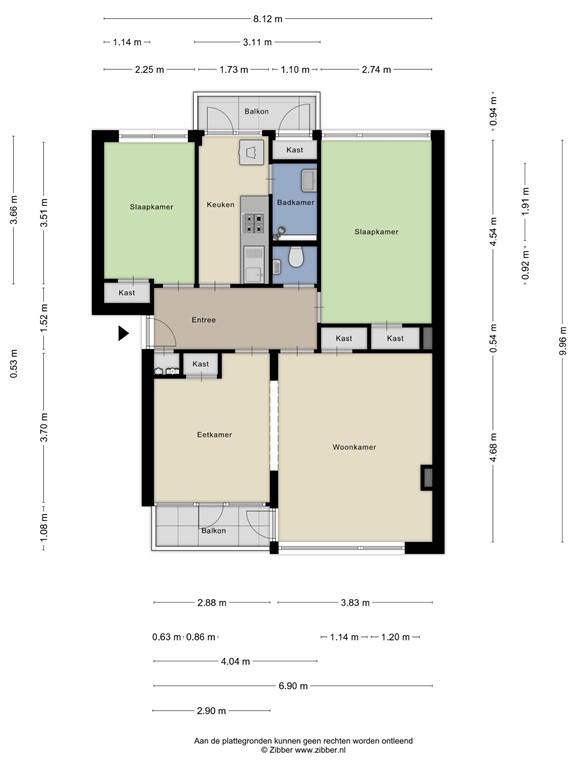
INDELING
Via de entree met intercomsysteem, het bellentableau en de brievenbussen loop je naar het appartement. 
Aangekomen in het appartement kom je in een royale hal die toegang geeft tot de woonkamer, twee slaapkamers, de keuken en de toiletruimte met hangend toilet en fonteintje. 
In de hal bevinden zich tevens de meterkast en de gaderobe.

De woning beschikt over een verzorgde laminaatvloer. 
Zowel de badkamer als de toiletruimte zijn betegeld afgewerkt. 

WOONKAMER
De royale woonkamer heeft een lichte en aangename uitstraling. 
Dankzij het grote raampartij valt er veel daglicht binnen en geniet je van een fraai uitzicht op het groen. 
Vanuit de zithoek stap je eenvoudig door naar de eetruimte. 
Ook zijn er twee vaste inbouwkasten aanwezig, ideaal voor extra bergruimte.

De afwerking is keurig en modern met gestucte wanden en plafonds. 
Via twee deuren in de woonkamer heb je toegang tot het balkon. 
Het balkon is gunstig op het zuiden gelegen.

KEUKEN
Vanuit de hal bereik je de keuken. 
De keuken is voorzien van een 4-pits gasfornuis met afzuigkap, een koelkast, aansluiting voor de wasmachine en er is voldoende kastruimte. 
De betegelde afwerking geeft de ruimte een nette en verzorgde uitstraling.

Daarnaast is er vanuit de keuken toegang tot het tweede balkon gelegen op het noorden. 
Vanaf het balkon is er toegang tot de ruimte met de cv-ketel opstelling.

Een aparte deur in de keuken geeft toegang tot de badkamer.

BADKAMER
De badkamer is keurig ingericht met strak tegelwerk. 
Daarnaast is de badkamer voorzien van een inloopdouche een wastafel met spiegel en een designradiator.

SLAAPKAMERS
Het appartement beschikt over twee slaapkamers. 
Beide slaapkamers zijn rustig gelegen aan de achterzijde van het appartementencomplex.

De eerste slaapkamer beschikt over een vaste kast. 
Deze slaapkamer kan ook perfect dienen als kantoorruimte. 
De grote slaapkamer is gelegen aan de achterzijde van de woning en is tevens voorzien van een vaste kast.

BALKONS
De twee balkons vormen een prettige plek om van de buitenlucht te genieten. 
Het balkon aan de voorzijde is gelegen op het zuiden en is toegankelijk via twee afzonderlijke deuren vanuit de woonkamer. 
Het balkon aan de achterzijde is gelegen op het noorden en geeft uitzicht op een groene speeltuin met bomen. 
De liggen aan de achterzijde zorgt voor een rustige plek om te ontspannen.

BERGING
De berging is van groot formaat (circa 15m²). 
Perfect voor het veilig en droog stallen van fietsen en het opbergen van een ruim assortiment aan spullen.

PORTIEKFLAT
Kleinschalige portiekflat met een gezonde en actieve Vereniging van Eigenaren (VvE).

OMGEVING
Dit appartement ligt in een rustige woonomgeving waar je alles binnen handbereik hebt. 
Winkelcentrum Westermarkt, Tilburg Universiteit en het treinstation zijn op loopafstand gelegen. 
Binnen vijftien minuten fiets je naar het levendige stadscentrum. 
Voor ontspanning in het groen wandel je zo naar het Wandelbos of de Oude Waranda.

Met de auto rijd je vlot de Ringbanen op richting Breda, Eindhoven of ’s-Hertogenbosch. 
Het vele groen rondom het complex zorgt voor een prettige sfeer en parkeren kan gemakkelijk dankzij de ruime parkeergelegenheid.

Bijzonderheden

* Groene en gunstige ligging nabij Tilburg Universiteit en Tilburg centrum
* Volledig voorzien van kunststof kozijnen met HR++ glas
* Badkamer met inloopdouche en designradiator
* Strakke afwerking met stucwerk wanden en plafonds
* Gehele woning is voorzien van een nette laminaatvloer
* Energielabel C
* Balkon aan de voor- én achterzijde
* Extra grote eigen berging met elektra
* Maandelijkse bijdrage VvE € 151,29

Kenmerken