Beschrijving
Ben je op zoek naar een instapklare hoekwoning met net dat beetje extra? Dan is Esterelstraat 2 absoluut een bezichtiging waard!
Deze uitgebouwde hoekwoning met zonnepanelen en een op het zuiden gelegen tuin biedt alles wat je zoekt. Een royale en lichte woonkamer, een moderne open keuken, drie fijne slaapkamers en een luxe, moderne badkamer. De ruime zolder biedt volop mogelijkheden, bijvoorbeeld als extra slaapkamer, werkruimte of hobbykamer.
Een comfortabel en compleet huis waar je zo in kunt trekken en je meteen thuis voelt.
Deze verrassende woning ligt heerlijk rustig en toch op een toplocatie. In de directe omgeving vind je diverse schoolvoorzieningen, sportcentra, winkels, ijsbaan en zwembad van Stappegoor. Binnen enkele minuten fiets je naar het bruisende centrum van Tilburg en naar het gezellige centrum van Goirle.
De bereikbaarheid is ook uitstekend. De nabijgelegen Ringbaan-Zuid zorgt voor een snelle verbinding met de uitvalswegen richting Breda, ’s-Hertogenbosch en Eindhoven. Zin in een wandeling of wat ontspanning in het groen? Het Leijpark ligt op korte afstand en biedt volop recreatiemogelijkheden. Een ideale plek voor wie rustig wil wonen met alle voorzieningen binnen handbereik!
Ben je benieuwd wat deze woning je nog meer te bieden heeft lees dan verder en twijfel niet om een bezichtiging te plannen. Wij laten je graag de woning zien en beantwoorden al je vragen.
Indeling
Je parkeert je auto gemakkelijk in één van de parkeerhavens direct voor de woning. Bij binnenkomst kom je in de hal die toegang biedt tot de garderobe, meterkast, toiletruimte, de trap naar de eerste verdieping en de woonkamer.
Via de houten taatsdeur met glas kom je in het woongedeelte. Aan de voorzijde van de woning bevindt zich de moderne keuken. Deze is uitgevoerd met een stijlvol keukenblok en voorzien van alle gemakken. Een ingebouwde magnetron, koelkast, 3-laden vriezer en diverse opbergkasten. Daarnaast beschikt de keuken over een 5-pits gasfornuis, afzuigkap en een luxe Quooker alles-in-1-kraan voor kokend, gekoeld en bruisend water.
De uitgebouwde woonkamer is heerlijk ruim en gericht op de tuin. Openslaande tuindeuren zorgen voor een fijne verbinding tussen binnen en buiten. De woonkamer is afgewerkt met een fraaie eikenhouten parketvloer en voorzien van comfortabele vloerverwarming. Extra bergruimte vind je in de praktische trapkast waar zich tevens de aansluiting van de vloerverwarming bevindt.
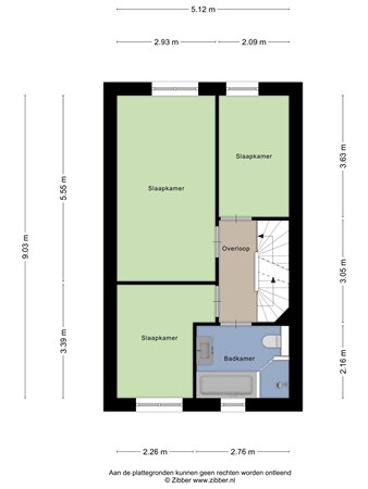
Eerste verdieping
Aangekomen op de eerste verdieping heb je vanuit de overloop toegang tot drie slaapkamers en een badkamer. Twee slaapkamers aan de achterzijde en één slaapkamer aan de voorzijde net als de badkamer.
De badkamer is modern uitgevoerd en straalt luxe en comfort uit. Hier kun je heerlijk ontspannen in het ligbad of kiezen voor een verfrissende douche in de aparte douchecabine. Verder is de badkamer compleet ingericht met een wastafelmeubel, toilet en een radiator.
De overloop en de slaapkamers zijn netjes afgewerkt en voorzien van een onderhoudsvriendelijke laminaatvloer wat zorgt voor een rustige en verzorgde uitstraling.
Tweede verdieping
Op de tweede verdieping kom je uit op de verrassend ruime zolderverdieping. Deze multifunctionele ruimte leent zich perfect als vierde slaapkamer maar kan ook worden ingericht als sportkamer, thuiswerkplek of extra bergruimte.
Dankzij de in 2024 geplaatst dakkapel met rolluik geniet deze verdieping van een zee aan ruimte en veel licht. Aan beide zijden zijn praktische bergschotten aanwezig en hier bevinden zich tevens de aansluitingen voor de wasmachine en de cv-installatie.
Een volwaardige extra verdieping met volop mogelijkheden!
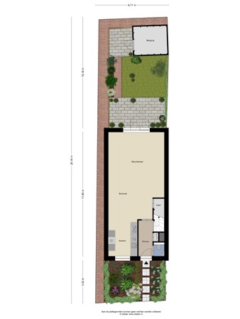
Tuin
Via de openslaande tuindeuren stap je zo de op het zuiden en dus zonnig gelegen tuin in. Hier geniet je volop van rust, privacy en een fijne hoeveelheid groen. Mocht het te warm worden dan kun je het elektrisch bedienbare zonnescherm naar beneden laten. De tuin beschikt over een houten bergschuurtje met elektra voor extra opslag en is er een praktische eigen achterom. Een heerlijke plek om te ontspannen en van het buitenleven te genieten!
Bijzonderheden
* Ruime hoekwoning met drie slaapkamers
* Grote zolder met dakkapel (geschikt voor vierde slaapkamer)
* Moderne badkamer
* Moderne keuken
* Woongedeelte eiken parket vloer met vloerverwarming
* Drie Zonnepanelen
* Kunststof kozijnen
* Energielabel A