Beschrijving
Fijne tussenwoning met eigen oprit voor twee auto’s gelegen in een verkeersluwe straat in de fijne en kindvriendelijke wijk “Gesworen Hoek” in de Reeshof.
De woning beschikt over 13 zonnepanelen, vloerverwarming op de begane grond en een royale achtertuin gelegen op het zuiden.
De halfopen keuken is voorzien van al de nodige inbouwapparatuur zoals een 4-pits inductiekookplaat met dubbele afzuigkap, koelkast, vriezer, vaatwasser, inbouwkoffiemachine, combi-oven, stoomoven, magnetron en meer dan voldoende opbergruimte.
Droom je van een badkamer die je helemaal naar eigen wens kunt realiseren?
In plaats van betalen voor de smaak van een ander creëer je aan Barendrechtstraat 17 precies wat bij je past.
Met twee rechter handen zal je voornamelijk op de eerste verdieping goed uit de weg kunnen.
Deze verdieping kan nog volledig naar wens worden ingericht terwijl de rest van de woning al een goede basis biedt.
Dankzij het royale perceel van bijna 200 m² is er bovendien in de toekomst ruimte voor een uitbouw.
Een huis met mogelijkheden op een plek waar je jouw woonwensen echt kunt waarmaken.
Deze woning is een uitstekende kans voor starters en gezinnen die op zoek zijn naar een fijne thuisbasis met potentie.
De woning is gelegen in de kindvriendelijke wijk Reeshof met alle dagelijkse voorzieningen binnen handbereik zoals winkelcentrum Heyhoef, (basis)scholen, treinstation Reeshof en verschillende sportfaciliteiten.
Er zijn genoeg mogelijkheden om het groen op te zoeken met de groenstrook langs het Wilhelminakanaal en het Reeshofbos op wandelafstand.
Uitvalswegen zijn direct te bereiken.
Je bent van harte welkom om tijdens een bezichtiging de woning zelf te ervaren.
Neem voor het inplannen van een afspraak of voor vragen gerust contact op met Adequaat Makelaardij.
Indeling
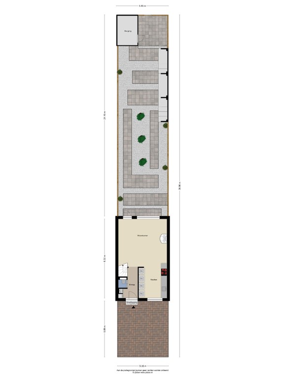
Via de voortuin met eigen oprit kom je aan bij de woning.
Vanuit de voordeur loop je de hal binnen waar de meterkast, gaderobe en toiletruimte met hangend toilet gesitueerd zijn.
Tevens is hier de trapopgang naar de eerste verdieping.
De gehele benedenverdieping is voorzien van een tegelvloer met vloerverwarming.
Bij binnenkomst in het woongedeelte stap je in een fijne lichte ruimte.
De halfopen keuken is gelegen aan het raam aan de voorzijde van de woning.
De moderne keuken is ruim opgezet en beschikt over een koelkast, vriezer met vier lades, vaatwasser, 4-pits inductiekookplaat met dubbele afzuigkap, inbouwkoffiemachine, stoomoven, combi-oven en magnetron.
Daarnaast biedt de keuken meer dan voldoende kastruimte.
Aan de achterzijde van de woning zijn de eethoek en de zithoek gesitueerd.
Dankzij de grote raampartijen naar de achtertuin is er veel lichtinval.
De houtkachel maakt het plaatje compleet.
Eerste verdieping
De eerste verdieping dient nog naar eigen smaak te worden afgewerkt.
De basis voor de badkamer is al gelegd.
Leidingen, riolering en aardematten zijn in 2015 aangebracht en ook de mechanische afzuiging is voorbereid.
De opzet voor de badkamer is aan de voorzijde van de woning gelegen.
Tevens is aan deze zijde een Somfy rolluiksysteem geplaatst.
De slaapkamer(s) zullen gesitueerd zijn aan de rustige achterzijde van de woning.
Denk aan een royale slaapkamer met kinderkamer of zelfs een master suite.
Op deze verdieping creëer je precies wat bij je past.
Tweede verdieping
Via de vaste trap bereik je de zolderverdieping.
Aangekomen op de voorzolder is hier de opstelling van de wasmachine en droger gelegen.
Tevens is hier een wateraansluiting met een wastafel.
De zolderkamer is voorzien van een groot dakraam en kan uitstekend dienen als extra slaapkamer of als kantoor- of sportruimte.
Daarnaast is er een bergzolder aanwezig wat ideaal is voor het opbergen van extra spullen.
Tuin
De achtertuin is gunstig gelegen op het zonnige zuiden en biedt met circa 115 m2 volop ruimte.
Dankzij de royale opzet is er bovendien meer dan voldoende mogelijkheid om in de toekomst bijvoorbeeld een uitbouw of overkapping te realiseren.
Achterin de tuin is een berging gelegen voorzien van elektra.
Via een poort is er toegang tot de achtertuin.
Bijzonderheden
* 13 zonnepanelen geplaatst in 2023
* Energielabel B
* Gelegen in een rustige, kindvriendelijke wijk met alle voorzieningen in de buurt
* Moderne halfopen keuken met inbouwapparatuur
* Vloerverwarming gehele begane grond
* Eerste verdieping is naar eigen smaak af te werken
* Somfy zonwering eerste verdieping
* Royale achtertuin (circa 115 m2) gelegen op het zuiden
Plattegronden
182276185_1626762_baren_begane_grond_first_design_20260214_82b64c.jpg
182276185_1626762_baren_eerste_verdiepi_first_design_20260214_b1e8b7.jpg
182276185_1626762_baren_tweede_verdiepi_first_design_20260214_c94ff2.jpg
182276185_1626762_baren_vliering_first_design_20260214_08db23.jpg
182276185_1626762_baren_begane_grond_tu_first_design_20260214_86b2c8.jpg
182276185_1626762_baren_berging_first_design_20260214_f6e899.jpg
182276185_1626762_baren_overkapping_first_design_20260214_f72349.jpg