Beschrijving
Royale tussenwoning met dubbele oprit gelegen in een verkeersluwe straat in de gezellige en kindvriendelijke wijk “Gesworen Hoek” in de Reeshof!
Ben je op zoek naar een ruime en comfortabele woning in Tilburg? Dan is Bakkumstraat 15 precies wat je zoekt.
Deze uitgebouwde woning biedt volop ruimte voor jonge stellen en gezinnen die op zoek zijn naar een fijne plek.
De woning beschikt over een lichte woonkamer met vloerverwarming, een complete open keuken en een extra zit- of eetgedeelte voorzien van lichtkoepels en openslaande tuindeuren.
De woning is grotendeels voorzien van kunststof kozijnen en rolluiken en beschikt op de verdiepingen over vier slaapkamers en een verzorgde badkamer.
De achtertuin op het noordwesten met royale berging en tuinkamer (ca. 25 m²) maken het geheel compleet.
De woning is gelegen in de wijk Reeshof met alle voorzieningen binnen handbereik zoals sportfaciliteiten, treinstation Reeshof en bushaltes en winkelcentra Buurmalsenplein en Heyhoef.
Er zijn genoeg mogelijkheden om het groen op te zoeken met het Huibevenpark en het Reeshofbos op enkele wandelminuten.
Daarnaast is er een uitgebreid aanbod aan basis- en middelbaaronderwijs en kinderopvang.
Met de auto zijn de uitvalswegen direct te bereiken.
Indeling
Via de voortuin kom je aan bij de woning.
Vanuit de voordeur kom je in de hal met meterkast, gaderobe, toiletruimte met hangend toilet en fonteintje.
De trapopgang naar de eerste verdieping is ook gelegen in de hal.
De gehele begane grond is voorzien van een tegelvloer met vloerverwarming.
Bij binnenkomst in het woongedeelte stap je in een ruime en lichte woonruimte.
Aan de voorzijde van de woning is de open keuken gesitueerd.
De keuken is praktisch ingericht in een U-opstelling en is uitgerust met alle benodigde inbouwapparatuur.
De keuken is voorzien van een koelkast, vaatwasser, 4-pits inductiekookplaat met een afzuigkap en daarnaast zijn er een oven en een combimagnetron aanwezig.
Er is meer dan voldoende kastruimte aanwezig.
De eethoek en het zitgedeelte bevinden zich centraal in de leefruimte.
Aan de achterzijde van de woning bevindt zich dankzij de uitbouw een extra zitgedeelte.
Deze ruimte leent zich bijvoorbeeld perfect voor een royale eettafel, ideaal om met familie en vrienden uitgebreid te tafelen.
Een uitnodigende plek voor gezelligheid ook voor grotere gezelschappen.
De twee lichtkoepels in de uitbouw zorgen voor veel lichtinval.
De openslaande tuindeuren creëren een verbinding met de tuin.
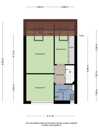
Eerste verdieping
Aangekomen op de eerste verdieping geeft de overloop toegang tot drie slaapkamers en de badkamer.
Twee slaapkamers zijn gelegen aan de achterzijde van de woning en deze zijn beide voorzien van een kantelraam.
De derde slaapkamer is gelegen aan de voorzijde van de woning.
De badkamer is ook aan de voorzijde van de woning gelegen.
Deze goed verzorgde badkamer is volledig betegeld en is uitgerust met een inloopdouche, hangend toilet, designradiator en badkamermeubel met spiegel.
In de badkamer is er tevens een mechanisch ventilatiesysteem aanwezig.
Tweede verdieping
Via de vaste trap bereik je de zolderverdieping welke voorzien is van dezelfde laminaatvloer als op de eerste verdieping.
Op de voorzolder is de wasmachine aansluiting gelegen.
Aan één zijde is er opbergruimte achter de knieschotten aanwezig.
Via een deur loop je naar de slaapkamer.
Het grote raam zorgt voor voldoende lichtinval.
De slaapkamer beschikt aan beide zijden over praktische opbergruimte.
Tuin
De verzorgde achtertuin op het noordwesten is ruim opgezet en biedt de perfecte plek om tot rust te komen.
Een elektrisch zonneluifel is aanwezig en biedt op zonnige dagen aangename schaduw.
Achter in de tuin bevindt zich een royale berging van circa 25 m². Deze berging bestaat uit een stenen berging met aangebouwde, afsluitbare tuinkamer.
Deze veelzijdige ruimte is ideaal om ook bij minder mooi weer comfortabel van de tuin te genieten en dient uitstekend als ontspannen zitplek.
Daarnaast biedt deze ruimte praktische bergruimte voor tuinbenodigdheden.
Zowel de berging als de tuinkamer zijn voorzien van elektra.
Via de stenen berging is er toegang tot de achterom.
Bijzonderheden
* Energielabel A
* Gelegen in een rustige, kindvriendelijke wijk met alle voorzieningen in de buurt
* Uitgebouwde woonkamer met lichtkoepels
* 4 slaapkamers
* Volledig voorzien van dubbele beglazing
* Grotendeels voorzien van kunststof kozijnen
* Vloerverwarming gehele begane grond
* Royale tuin met stenen berging en houten tuinkamer voorzien van elektra
* Grotendeels voorzien van elektrisch bedienbare rolluiken