Beschrijving
Ben je op zoek naar een instapklare woning met net dat beetje extra? Dan is Gruttohof 8 absoluut een bezichtiging waard!
Deze uitgebouwde hoekwoning met GARAGE biedt alles wat je zoekt. Een royale woonkamer, een moderne open keuken (2022), vier slaapkamers en een luxe nieuwe badkamer (2022). Voeg daar een fraai aangelegde tuin met gezellige veranda aan toe en je hebt jouw ideale thuis gevonden.
Gelegen in de rustige en kindvriendelijke wijk ‘De Biezen’, omgeven door groen, speelveldjes en basisscholen. Het centrum van Dongen ligt op korte fietsafstand, net als winkels, sportvoorzieningen en uitvalswegen. Kortom een perfecte plek voor gezinnen, starters en doorstromers.
Interesse? Neem contact op met Adequaat Makelaardij voor een bezichtiging. We laten je graag alle pluspunten van deze fijne woning zien!
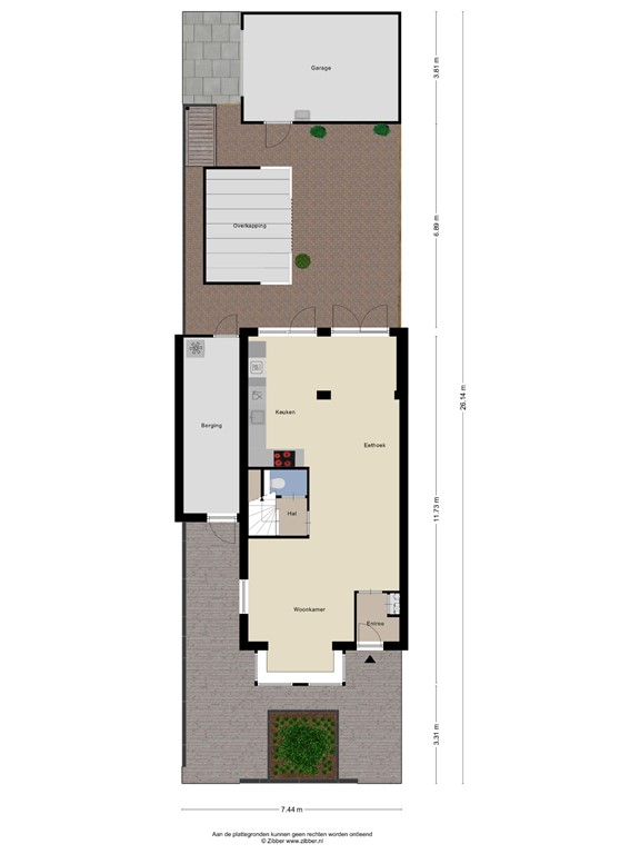
Indeling
Je parkeert je auto in de garage of in een van de parkeerhavens voor of naast de woning. Aangekomen bij de woning heb je vanuit de hal toegang tot de garderobe, meterkast en de woonkamer.
In de woonkamer valt meteen de gezellige sfeer en ruimte van het woongedeelte op. Aan de voorzijde vind je het zitgedeelte met erker. De eethoek is gelegen aan de achterzijde in het keukengedeelte en heeft uitzicht op de tuin. De gehele benedenverdieping is afgewerkt met een fraaie tegelvloer met vloerverwarming en het plafond is afgewerkt met een sierlijst.
De moderne nieuwe keuken (2022) is ruim van opzet en voorzien van diverse inbouwapparatuur zoals een inductiekookplaat, moderne afzuigkap, koelkast, vaatwasser, combimagnetron en voldoende opbergruimte door o.a. de aanwezigheid van een apothekerskast. En voor de gezellige avonden ligt de wijn al koel in de wijnklimaatkast.
Vanuit de keuken heb je toegang tot de tuin via een loopdeur en vanuit het eetgedeelte via openslaande tuindeuren.
Via een tussenportaal kom je uit bij de trapopgang naar de eerste verdieping en ook tref je hier de toiletruimte aan.
De twee trappen in huis zijn in 2023 opnieuw bekleed met vloerbedekking.
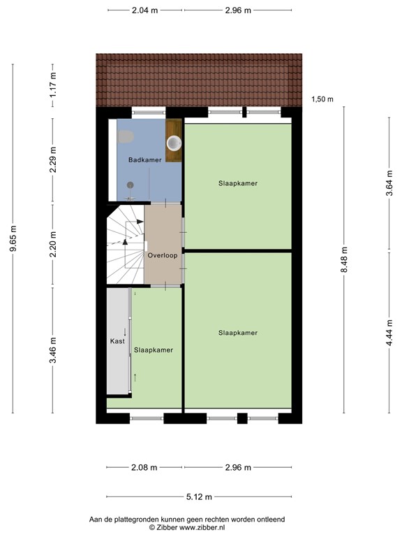
Eerste verdieping
Aangekomen op de bovenverdieping heb je vanuit de overloop toegang tot drie slaapkamers en een badkamer. Twee slaapkamers aan de voorzijde en één slaapkamer aan de achterzijde net als de badkamer.
De badkamer is in 2022 vernieuwd en straalt luxe en comfort uit. Voorzien van een inloopdouche met stort- en handdouche, een wastafel in meubel, designradiator en een toilet.
De overloop en de slaapkamers zijn voorzien van een laminaatvloer.
Tweede verdieping
Aangekomen op de tweede verdieping tref je de zolderruimte aan. Deze kan dienen als vierde slaapkamer maar ook als sportruimte, kantoorruimte of gewoon bergruimte. Er is hier voldoende lichtinval door de ramen aan de zijkant van de zolder en het Velux dakraam. Aan beiden zijden zijn er bergschotten en als je nog niet genoeg bergruimte hebt is er ook nog een vlizozolder aanwezig. De vloer is afgewerkt met laminaat.
Tuin
Een tuin om van te genieten! De tuin is zonder twijfel één van de grote pluspunten van deze woning. In tuin, gelegen op het noordwesten, bevindt zich een vrijstaande houten veranda waar je heerlijk overdekt kunt genieten van lange avonden ongeacht het weer.
Achter in de tuin staat tevens de garage, die zowel via de tuin als vanaf de straatzijde toegankelijk is. Voor de garage ligt een eigen oprit, ideaal voor het parkeren van je auto op eigen terrein. In de garage vind je een uitstortgootsteen en is er elektra aanwezig. Een praktische ruimte voor extra opslag.
Naast de woning bevindt zich bovendien een handige berging, die ook via de voorkant van het huis te bereiken is.
Kortom een buitenruimte met volop comfort, gemak en mogelijkheden!
Bijzonderheden
* Ruime hoekwoning met vier slaapkamers
* Moderne badkamer (2022)
* Moderne keuken (2022)
* Woongedeelte tegelvloer met vloerverwarming
* Woning voorzien van rolluiken
Plattegronden
178202536_1585462_grutt_begane_grond_first_design_20251020_dd073a.jpg
178202536_1585462_grutt_begane_grond_tu_first_design_20251020_b3cf2b.jpg
178202536_1585462_grutt_eerste_verdiepi_first_design_20251020_0a87ca.jpg
178202536_1585462_grutt_garage_first_design_20251020_2a0843.jpg
178202536_1585462_grutt_overkapping_first_design_20251020_2836d4.jpg
178202536_1585462_grutt_tweede_verdiepi_first_design_20251020_9ee90a.jpg
178202536_1585462_grutt_zolder_first_design_20251020_874d0a.jpg